Monkspath Junior & Infant School
Education
Shirley, West Midlands
REQUIREMENT:
The school urgently required a new ramp to the nursery block.
The existing timber ramp had rotted, making a fast, compliant replacement essential before the September term.
Our galvanised modular ramp was the ideal solution — tough enough for wet British weather and quick to install.
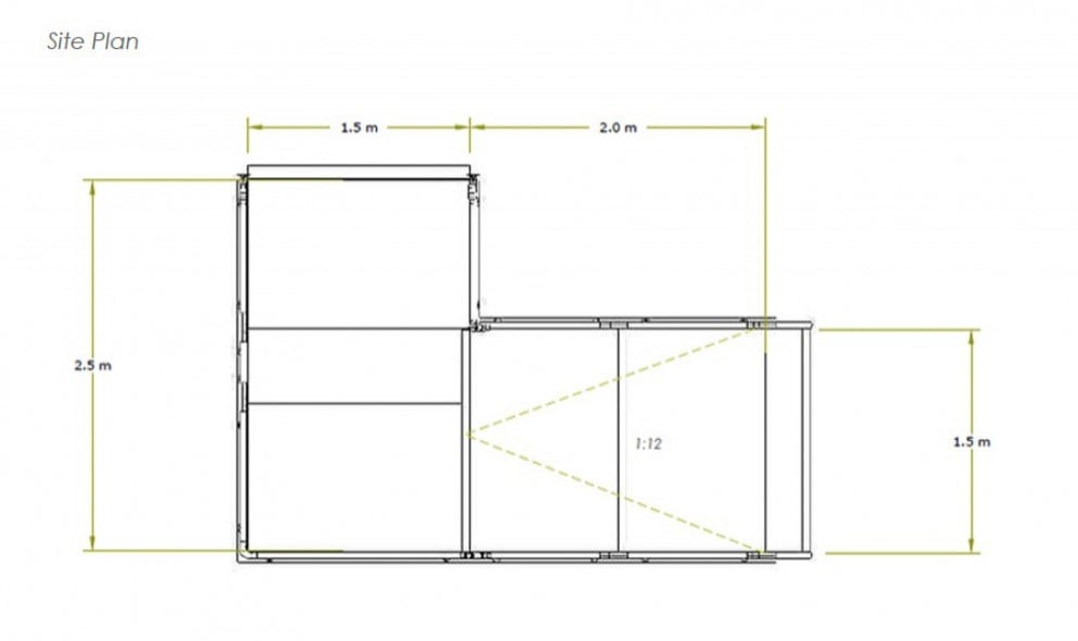
DESIGN PHASE:
Rapid Scan technology was used to digitally map the entire site, capturing the building, floor levels, and any obstacles.
Using this data, our in-house drawing team created a 3D model of the ramp, accurately overlaid onto a virtual rendering of the site.
The final 2D plan and 3D model were submitted to the council and the school’s facilities manager, who promptly approved the proposal.
INSTALLATION:
The project was completed efficiently over just two days during the summer break: one day for the ramp installation and another for applying the rubber crumb surface.
All work was finished well ahead of the new term, ensuring zero disruption to the academic timetable.
A key advantage of our modular ramp is its adaptability. If the door layout changes, the ramp can be quickly reconfigured, unlike concrete or timber alternatives, which are single-use and often discarded into landfill once they are no longer suitable.
FEATURES INCLUDED:
- Infill Handrail - This product safeguards against users climbing or falling through gaps.
- Yellow Tread - A safety feature designed to help those with impaired vision identify the system's nose and any level changes.
- Looped Trombone Ends – Prevents clothes from snagging at the ends.
- Slip-Resistant Mesh Platform - A multi-directional walkway with self-draining steel mesh and a galvanised finish.
- Continuous Handrail - This handrail system ensures that users always have a support to hold onto.
- 1100mm High Rail - these handrails attach to any level sections.
- Standard Colour: Black - Our ramps have a powder-coated black finish that is more durable than typical paint.
- Adjustable Telescopic Legs - These can be adapted to suit various threshold heights.
- Solid Hoarding - This skirt is purposefully designed to deter unauthorised access to the underside of the ramp, making it a frequent choice for schools.
- Safetread Rubber Crumb Surface - This soft, slip-resistant surface effectively reduces the impact of falls. Made from the same materials used in soft play areas, it is perfect for nurseries, schools, and public facilities. Additionally, it is available in a variety of colours and maintains its performance in all weather conditions.
HAVE A SIMILAR REQUIREMENT?
REQUEST A QUICK PRICE
Estimates can be returned within 24hrs if there is clear information given, including project address, drawings, photos and contact details.






